Skip til hoved indholdet MinSide MinSide

4.401 kr. pr.md

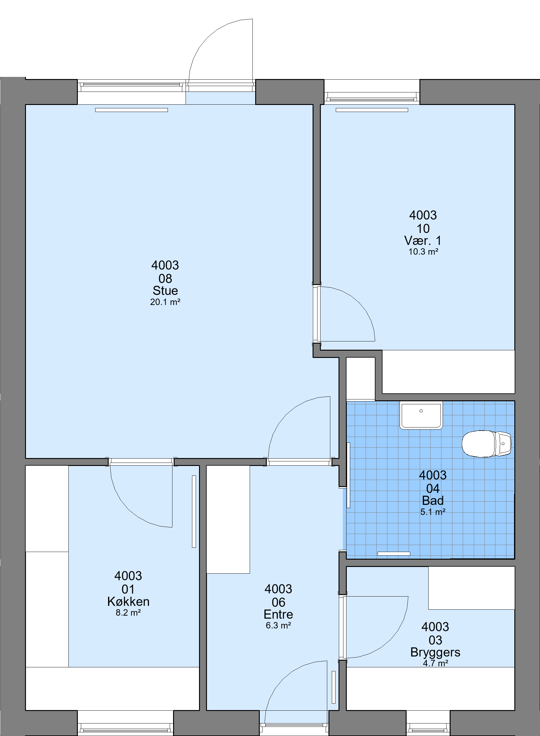
Rækkehus | Familiebolig | 2 vær. | 66 m² | Indskud/dp.: 13.203 kr.

Afdelingen består af 124 rækkehuse fordelt i byerne Jebjerg, Breum, Selde, Durup, Glyngøre samt på Fur.
Boligerne er hovedsageligt opført i 1980'erne og har alle terrasse/have.
I 2024 er boligerne på Præstemarken og Sdr. Allé i Breum, på Nr. Allé i Jebjerg samt Tingagervej 1-7 og 34-40 på Fur alle blevet gennemrenoveret indvendig.

Hver lejlighed er tilsluttet fiberbredbånd, hvorfor der kan indgås aftale om tv, internet m.v. direkte med forskellige udbydere.

Boligforeningen råder over 3 gæsteværelser samt en gildesal i Skive by, som kan lejes af alle beboere.

Faciliteter

Husdyr
Ja

Det er tilladt at holde 1 hund eller 1 kat - se mere for den enkelte bebyggelse i ordensreglementet.

Vaskemaskine
Ja

Installation af vaskemaskine og tørretumbler er muligt. Kontakt AAB for mere information.

Carport/garage
Ja

Der er 2 carporte som kan lejes via venteliste.

TV
Ja

Er tilsluttet fibernet

Vaskeri
Ja

Der er fællesvaskeri.

Bliv medlem

Albert Diges Vej 20

7800 Skive

Sydbank 7118 0001709735

CVR nr. 37308811

VAGTTELEFON

Telefon: 9752 2733
post@aabskive.dk

Genveje