Skip til hoved indholdet MinSide MinSide

5.410 kr. pr.md

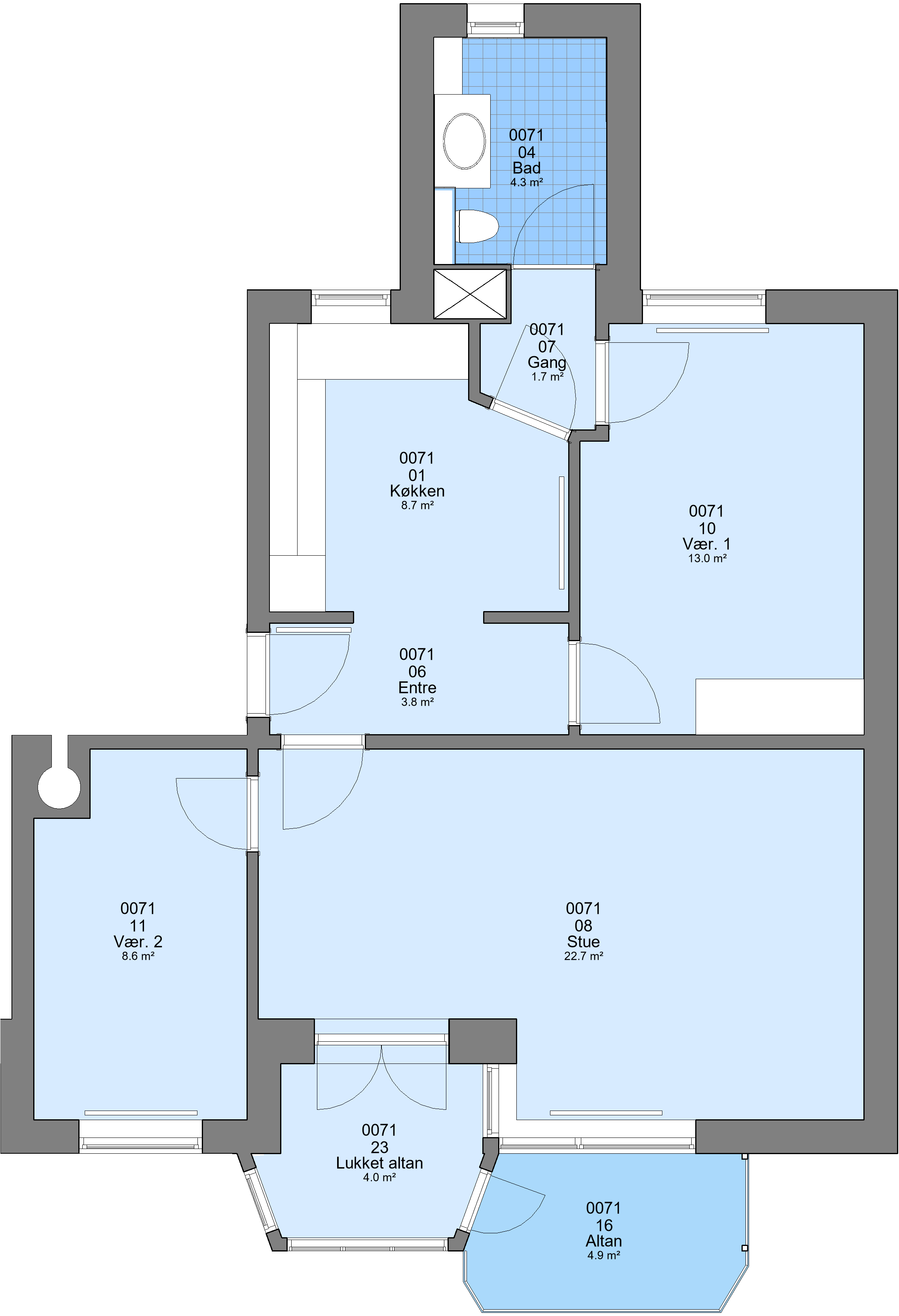
Etagebyggeri | Familiebolig | 3 vær. | 88 m² | Indskud/dp.: 16.230 kr.

Ringparken er beliggende i den vestlige bydel med gode forbindelser til byens ringveje, tæt på indkøb samt Skive centrum.

Bebyggelsen, der består af 10 boligblokke i 3 etager, er opført i 1940'erne og er løbende renoveret, senest i 2006/2007 med nye køkkener og badeværelser. Alle boliger har stor åben altan, og boligerne i Ringparken 5-10 har desuden en lukket altan. I kælderetagen findes tørrerum og cykelrum samt eget pulterrum til hver bolig.
Der er opholdsarealer og legeplads i de grønne områder.

Alle boliger har dørtelefon samt installationer for tilslutning af vaskemaskine og tørretumbler, og der er ligeledes fællesvaskeri.
Hver bolig er tilsluttet fiberbredbånd, hvor der kan indgås aftale om tv, internet m.v. direkte med forskellige udbydere. Som en anden valgmulighed har boligerne eget antenneanlæg, hvor YouSee tilbyder deres tv-pakker og internet.

6 gange årligt foretages udvendig vinduesvask af samtlige boliger, ligesom der løbende udføres trappevask.

Der er et fælleslokale til udlejning for afdelingens egne beboere samt gæsteværelse til overnattende gæster. Boligforeningen råder over yderligere 2 gæsteværelser i Skive by som kan lejes af alle beboere.

Faciliteter

Altan
Ja

Der er åben altan til alle boliger samt også lukket altan til boligerne i nr. 5 til 10.

Vaskemaskine
Ja

Installation af vaskemaskine og tørretumbler er muligt. Kontakt AAB for mere information.

Carport/garage
Ja

Der er 10 garager som kan lejes via venteliste

TV
Ja

Er tilsluttet fibernet samt eget antenneanlæg, der er tilsluttet YouSee

Vaskeri
Ja

Der er fællesvaskeri

Fælleshus
Ja

Der er fælleshus samt et gæsteværelse

Bliv medlem

Albert Diges Vej 20

7800 Skive

Sydbank 7118 0001709735

CVR nr. 37308811

VAGTTELEFON

Telefon: 9752 2733
post@aabskive.dk

Genveje