Skip til hoved indholdet MinSide MinSide

5.807 kr. pr.md

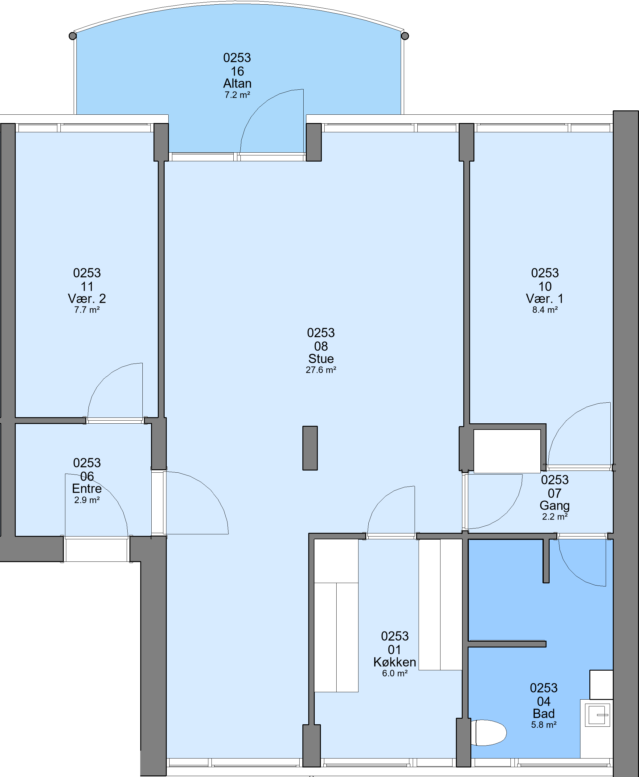
Etagebyggeri | Familiebolig | 3 vær. | 77 m² | Indskud/dp.: 17.421 kr.

Bebyggelsen er beliggende i den sydvestlige bydel med gode forbindelser til byens ringveje, tæt på centrum og indkløb. Bebyggelsen, der består af 14 boligblokke i 3 eller 4 etager, er opført i 1960'erne og er løbende renoveret med ny stor åben altan, nyt tag, nye vinduer og døre, ligesom adskillige lejligheder har fået nye køkkener og/eller badeværelser, nye gulve, nye indvendige døre samt garderobeskabe.
Der er opført særskilte bygninger, hvori der er indrettet fællesvaskeri, fælleshus samt garageanlæg.

Der er fælles cykelrum, knallertrum og barnevognsrum. Til hver lejlighed hører eget pulterrum.
Til hovedparten af stuelejligheder er der have - ellers er der mulighed for anlæggelse af dette.

Hver bolig er tilsluttet fiberbredbånd, hvor der kan indgås aftale om tv, internet m.v. direkte med forskellige udbydere. Som en anden valgmulighed har boligerne eget antenneanlæg, hvor YouSee tilbyder deres tv-pakker og internet.
6 gange årligt foretages udvendig vinduesvask af samtlige boliger, ligesom der løbende udføres trappevask.

Alle boliger har dørtelefon.
Der er ladestander til elbiler på P-pladsen ved Kirke Allé 46-48.

Der er store grønne områder med borde og bænke samt gode legepladser og multibane.

Boligforeningen råder over 3 gæsteværelser andre steder i Skive by som kan lejes af alle beboere.

Faciliteter

Vaskemaskine
Ja

Installation af vaskemaskine og tørretumbler er muligt. Kontakt AAB for mere information.

Carport/garage
Ja

Der er 66 garager som kan lejes via venteliste.

TV
Ja

Er tilsluttet både YouSee samt fibernet

Vaskeri
Ja

Der er 2 fællesvaskerier

Fælleshus
Ja

Der er fælleshus

Bliv medlem

Albert Diges Vej 20

7800 Skive

Sydbank 7118 0001709735

CVR nr. 37308811

VAGTTELEFON

Telefon: 9752 2733
post@aabskive.dk

Genveje