---
title: "Gammelgårdsvej 10 3. tv., 7800 Skive"
description: "1-7-514"
date: "2026-03-13"
created: "2026-02-12"
---

-
-
-
-
-
-
-
-
-
-
-

https://aabskive.dk/Files/Boligdata/PlantegningerEseeBase/01-07-0514.png

                                https://maps.google.dk/?q=56.5532468,9.0322924

# Gammelgårdsvej 10 3. tv., 7800 Skive

Afdeling 7

## 5.120 kr. pr.md

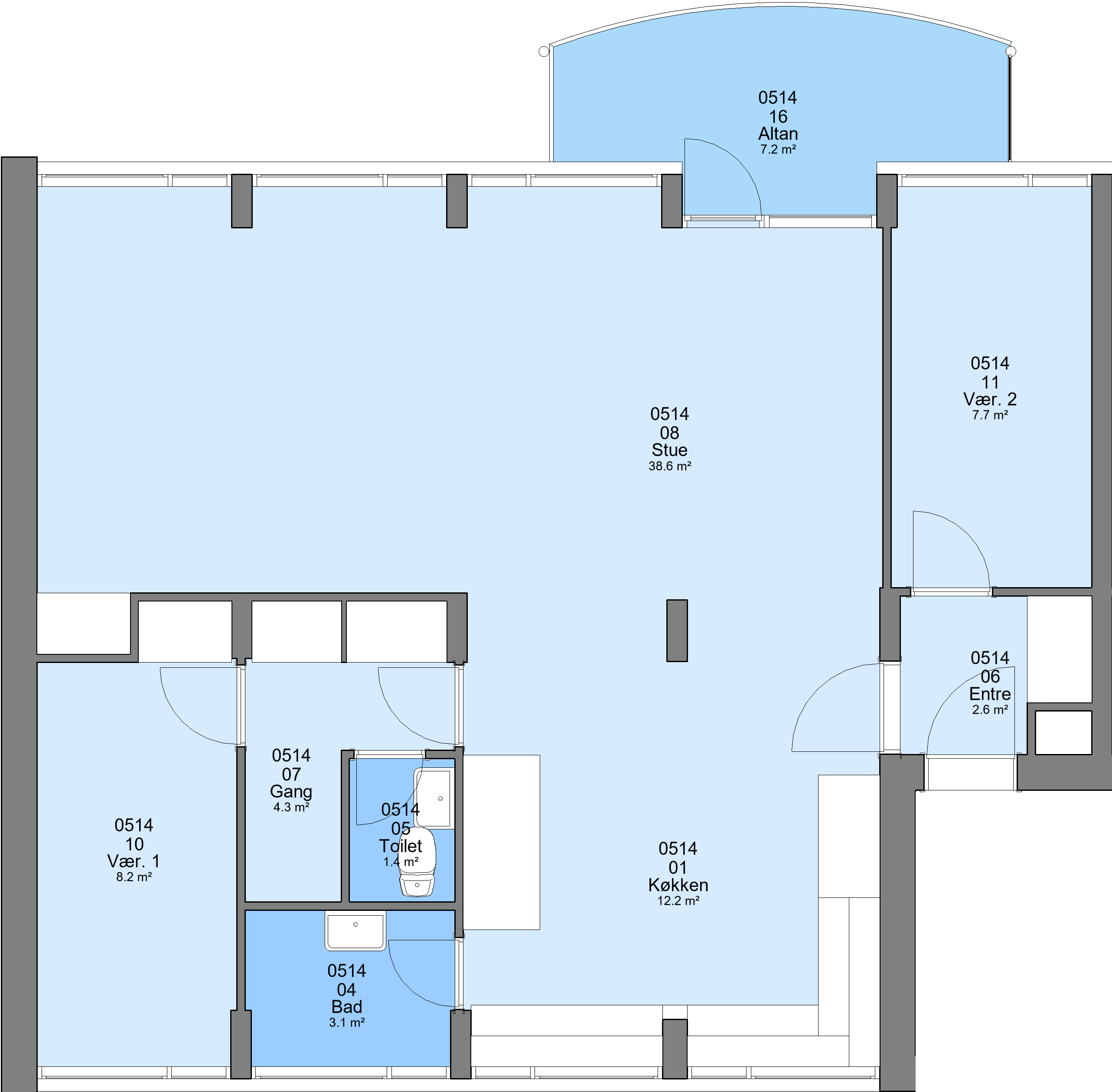
Ledig fra: 01-05-26 | Etagebyggeri | Familiebolig | 4 vær. | 97 m² | Indskud/dp.: 17.872 kr.

[Bliv medlem](https://www.aabskive.dk/bliv-medlem)

Bebyggelsen er beliggende i den sydvestlige bydel med gode forbindelser til byens ringveje, tæt på centrum og indkløb. Bebyggelsen, der består af 14 boligblokke i 3 eller 4 etager, er opført i 1960'erne og er løbende renoveret med ny stor åben altan, nyt tag, nye vinduer og døre, ligesom adskillige lejligheder har fået nye køkkener og/eller badeværelser, nye gulve, nye indvendige døre samt garderobeskabe.
Der er opført særskilte bygninger, hvori der er indrettet fællesvaskeri, fælleshus samt garageanlæg.

Der er fælles cykelrum, knallertrum og barnevognsrum. Til hver lejlighed hører eget pulterrum.
Til hovedparten af stuelejligheder er der have - ellers er der mulighed for anlæggelse af dette.

Hver bolig er tilsluttet fiberbredbånd, hvor der kan indgås aftale om tv, internet m.v. direkte med forskellige udbydere. Som en anden valgmulighed har boligerne eget antenneanlæg, hvor YouSee tilbyder deres tv-pakker og internet.
6 gange årligt foretages udvendig vinduesvask af samtlige boliger, ligesom der løbende udføres trappevask.

Alle boliger har dørtelefon.
Der er ladestander til elbiler på P-pladsen ved Kirke Allé 46-48.

Der er store grønne områder med borde og bænke samt gode legepladser og multibane.

Boligforeningen råder over 3 gæsteværelser andre steder i Skive by som kan lejes af alle beboere.

## Faciliteter

Husdyr

Nej

Det er ikke tilladt at holde husdyr i afdelingen. Gl. gårdsvej 15-25 er det tilladt at holde 1 hund.

Opvaskemaskine

Ja

Installation af opvaskemaskine er muligt. Kontakt AAB for mere information.

Vaskemaskine

Ja

Installation af vaskemaskine og tørretumbler er muligt. Kontakt AAB for mere information.

Carport/garage

Ja

Der er 66 garager som kan lejes via venteliste.

TV

Ja

Er tilsluttet både YouSee samt fibernet

Vaskeri

Ja

Der er 2 fællesvaskerier

Fælleshus

Ja

Der er fælleshus

Dørtelefoni

Ja

Der er dørtelefoni i afdelingen - hoveddøren er låst i aften og nattetimerne.

Ladestander

Ja

Der er 2 ladestandere for enden af blokken på Gl. gårdsvej,

                        Se flere
