Skip til hoved indholdet MinSide MinSide

5.314 kr. pr.md

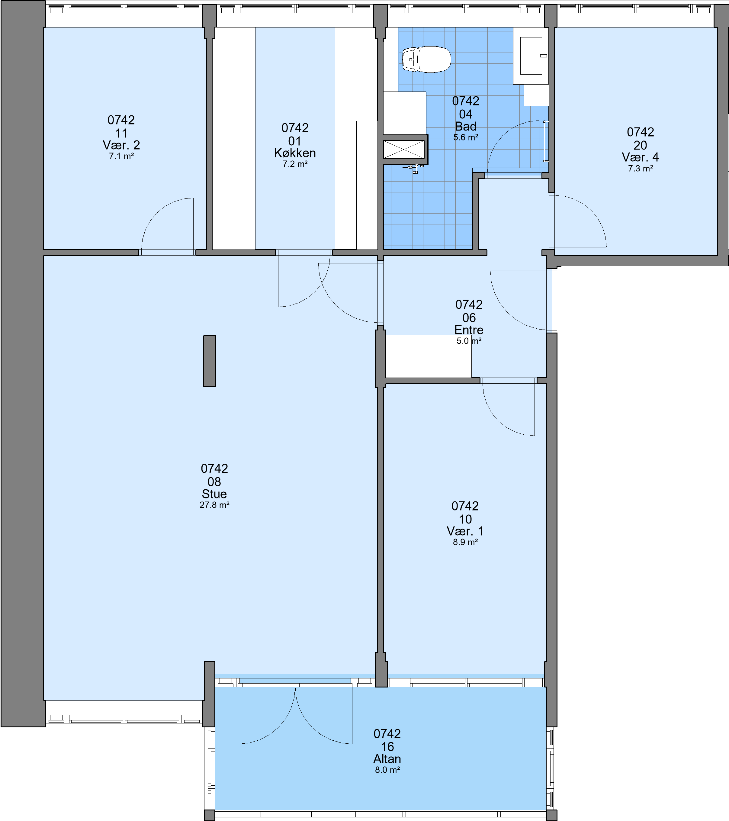
Etagebyggeri | Familiebolig | 4 vær. | 87 m² | Indskud/dp.: 15.630 kr.

Bebyggelsen er beliggende i den vestlige del af byen, tæt på ringvejen.
Der er multibane og legepladser til børnene, en del garager for beboerne samt et fælleshus. Bebyggelsen, der består af 12 boligblokke på 3 etager, er opført i 1970, og har fået nye køkkener, nyt tag og facader. I 2016/2017 har alle boliger fået nye badeværelser med egen vaskemaskine og tørretumbler. Ligeledes har en del boliger fået nye indvendige døre og nye garderobeskabe. Hvor dette endnu ikke er foretaget kan dette foretages mod en huslejeforhøjelse såfremt dette ønskes.

Der er fælles cykelrum, knallertrum og barnevognsrum. Til hver lejlighed hører eget pulterrum.
Til hovedparten af stuelejligheder er der have - ellers er der mulighed for anlæggelse af dette.

Hver bolig er tilsluttet fiberbredbånd, hvor der kan indgås aftale om tv, internet m.v. direkte med forskellige udbydere. Som en anden valgmulighed har boligerne eget antenneanlæg, hvor YouSee tilbyder deres tv-pakker og internet.

6 gange årligt foretages udvendig vinduesvask af samtlige boliger, ligesom der løbende udføres trappevask.

Der er ladestander til elbiler på P-pladsen ved Dalgas Allé 29-31.

Der er fælleshus samt 2 gæsteværelser som kan lejes af alle beboere.
Boligforeningen råder over yderligere 1 gæsteværelse et andet sted i Skive by som kan lejes af alle beboere.

Faciliteter

Vaskemaskine
Ja

Der er installeret vaskemaskine og tørretumbler i boligen.

Carport/garage
Ja

Der er 30 garager som kan lejes via venteliste.

TV
Ja

Er tilsluttet både YouSee samt fibernet

Fælleshus
Ja

Der er fælleshus og 2 gæsteværelser

Bliv medlem

Albert Diges Vej 20

7800 Skive

Sydbank 7118 0001709735

CVR nr. 37308811

VAGTTELEFON

Telefon: 9752 2733
post@aabskive.dk

Genveje